- 27305 Bruchhausen-Vilsen
- Bergstraße 12
- Kaufpreis370.000,00 €
- CourtagehinweisProvisionsfrei für den Käufer inkl. MwSt.
- Wohnfläche205,0 m²
- Grundstück 1.000,0 m²
- Anzahl Zimmer 8,0
- Objektnummer 1238
Bruchhausen-Vilsen - ***Ihr Familienglück in Bestlage von Vilsen - Einfamilienhaus mit Einliegerwohnung***
Objektbeschreibung
Objektbeschreibung
***KÄUFERPROVISIONSFREI***
In begehrter Bestlage von Bruchhausen-Vilsen präsentiert sich dieses großzügige Einfamilienhaus mit separater Einliegerwohnung auf einem attraktiven Grundstück mit schönem Garten und Doppelgarage, sowie einer neuwertigen Gastherme von 2024. Die Immobilie überzeugt durch ihre durchdachte Aufteilung, viel Platz für die ganze Familie sowie vielseitige Nutzungsmöglichkeiten – ob als Mehrgenerationenhaus, zur teilweisen Vermietung oder zur Kombination von Wohnen und Arbeiten unter einem Dach.
Das Haupthaus erstreckt sich über die Hochparterre, das Obergeschoss sowie das ausgebaute Dachgeschoss und bietet insgesamt vier Schlafräume, großzügige Wohnbereiche und einen zusätzlichen Spitzboden. Die Einliegerwohnung befindet sich im darunterliegenden Erdgeschoss und verfügt über einen separaten, abgeschlossenen Wohnbereich.
Das Haus präsentiert sich insgesamt in einem gepflegten Zustand und überzeugt zugleich durch seine solide Grundsubstanz, die eine ideale Basis für individuelle Modernisierungen und eine attraktive Wertsteigerung bietet.
Raumaufteilung – Haupthaus
Hochparterre:
Bereits beim Betreten des Hauses wird das großzügige Raumgefühl deutlich.
Ein heller Eingangsflur begrüßt Sie in diesem Wohntraum.
Hier befinden sich mehrere gut geschnittene Schlafräume, die flexibel als Kinder-, Gäste- oder Arbeitszimmer genutzt werden können.
Das weiß geflieste Vollbad ist funktional gestaltet und bietet ausreichend Platz für die Bedürfnisse einer Familie.
Ergänzt wird diese Ebene durch ein Gäste-WC.
Obergeschoss:
Das Herzstück bildet das große, lichtdurchflutete Wohnzimmer mit direktem Zugang zum Balkon – ideal, um sonnige Stunden in ruhiger Atmosphäre zu genießen.
Die geräumige Küche mit offenem Essbereich bietet viel Platz für gemeinsame Mahlzeiten und gesellige Abende. Die offene Gestaltung schafft eine moderne Wohnatmosphäre mit kurzen Wegen und viel Kommunikation im Alltag.
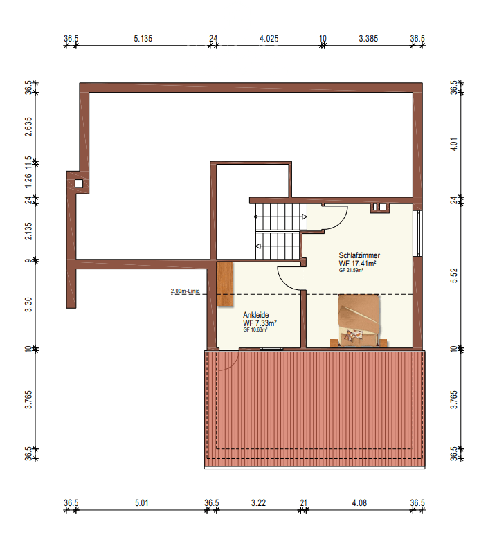
Dachgeschoss:
Das ausgebaute Dachgeschoss bietet einen weiteren Schlafraum sowie ein separates Ankleidezimmer – ideal als privater Rückzugsbereich.
Zusätzlich steht ein Spitzboden als praktische Abstellfläche oder Ausbaureserve zur Verfügung.
Einliegerwohnung (Erdgeschoss)
Die separate Einliegerwohnung im unteren Erdgeschoss umfasst:
Eigene Terrasse
Zwei gut geschnittene Zimmer
Eine Küche
Ein Badezimmer
Die Einheit eignet sich ideal zur Vermietung, als Wohnraum für Angehörige oder als Büro- bzw. Praxisbereich. Durch die klare Trennung vom Haupthaus bleibt die Privatsphäre beider Wohneinheiten gewahrt.
Die Wohnung ist seit 5 Jahres vermietet. Die Mieterin würde gerne wenn möglich gerne im Objekt verbleiben.
Aber selbstverständlich kann die Einliegerwohnung auch problemlos selbst genutzt werden.
Die aktuelle Kaltmiete beläuft sich auf 350,00 EUR/Monat.
Keller:
Das Gebäude ist vollunterkellert und verfügt über eine komfortable, wohnraumähnliche Deckenhöhe, wodurch sich vielfältige Nutzungsmöglichkeiten ergeben.
Im Kellergeschoss befinden sich:
Heizungsraum
Vorratskammer
Waschküche
Drei großzügige Kellerräume
Die Räume bieten ausreichend Platz für Lagerung, Hobby, Werkstatt oder weitere individuelle Nutzungskonzepte.
Ebenso zu erwähnen ist der separate Schornstein, der bereits für einen geplanten Kamin installiert ist.
Grundstück und Außenbereich
Zur Rückseite des Hauses befindet sich ein schöner, gewachsener Garten mit viel Potenzial zur individuellen Gestaltung. Ob Spielfläche für Kinder, Nutzgarten oder Ruheoase – hier eröffnen sich zahlreiche Möglichkeiten.
Die Doppelgarage bietet komfortable Parkmöglichkeiten sowie zusätzlichen Stauraum.
Wir haben Ihr Interesse geweckt? Dann freuen wir uns auf Ihre Kontaktaufnahme!
in diesem tollen Objekt lässt sich ein modernes, wertbeständiges Zuhause in erstklassiger Lage schaffen.
Ausstattung
Ca. 205m² Wohn-Nutzfläche aufgeteilt in:
Haupthaus ca .145m²:
Hochparterre:
Flur
Gäste-WC
Badezimmer
Büro
Schlafzimmer 1
Schlafzimmer 2
Obergeschoss:
Großzügiges Wohnzimmer
Küche mit Essbereich
Balkon
Dachgeschoss:
Schlafzimmer 3
Ankleide
Einliegerwohnung im Erdgeschoss ca. 60m²:
Schlafzimmer
Wohnzimmer
Küche
Badezimmer
PLUS
Spitzboden
Abseite im Dach für weitere Abstellmöglichkeiten
Keller:
Heizungsraum
Kellerraum 1
Kellerraum 2
Kellerraum 3
Trockenraum
Vorratskammer
PLUS:
Doppelgarage
Garten
Lage
Bruchhausen-Vilsen ist bekannt für seinen historischen Ortskern, seine malerische Umgebung und eine hervorragende Infrastruktur. Einkaufsmöglichkeiten, Ärzte, Cafés und Restaurants sind bequem erreichbar. Ebenso bietet der Ort eine gute Verkehrsanbindung in Richtung Bremen und Diepholz. Die Lage der Wohnung verbindet somit ruhiges, ländlich geprägtes Wohnen mit hoher Lebensqualität und guter Erreichbarkeit.
Sonstige angaben
Die in diesem Exposé enthaltenen Angaben wurden mit größter Sorgfalt zusammengestellt. Dennoch können wir keine Gewähr für die Vollständigkeit, Richtigkeit und Aktualität der bereitgestellten Informationen übernehmen. Insbesondere Angaben zu Grundrissen, Flächen, Baujahr, Ausstattung und sonstigen Details erfolgen ohne Gewähr.
Der Käufer wird daher empfohlen, alle Angaben vor Abschluss des Kaufvertrages durch eigene Untersuchungen und Besichtigungen zu überprüfen. Jegliche Haftung für Schäden, die direkt oder indirekt aus der Nutzung der im Exposé enthaltenen Informationen entstehen, ist ausgeschlossen.
Der Makler ist für den Verkäufer provisionspflichtig tätig (Innenprovision). Der Käufer zahlt keine Maklercourtage.
Ausstattung
- Ausstattungskategorie
- Standard
- Bad
- Dusche, Wanne, Fenster
- Küche
- Einbauküche
- Befeuerung
- Gas
- Stellplatzart
- Garage
- Gartennutzung
- Unterkellert
- Keller
- Abstellraum
- Gäste-WC
Energiepass
- Energieausweistyp
- Bedarfsausweis
- Gültig bis
- 24.02.2036
- Energiebedarf
- 145.2
- Energieträger
- Gas
- Energieeffizienzklasse
- E
- Ausstelldatum
- 25.02.2026
- Geltende EnEV
- 2014
- Gebäudeart
- Wohngebäude
Kontaktperson
- Vorname
- Isabel
- Name
- Gerlach
- Email Zentrale
- gerlach@fingas-immobilien.de
- Telefon Zentrale
- 04292-8187638
- Mobil
- 0173 - 172 13 48
Immobiliendetails
- Objektnummer
- 1238
- Vermarktung
- Kauf
- Objektart
- Zweifamilienhaus
Kosten
- Kaufpreis
- 370.000,00 €
- Courtagehinweis
- Provisionsfrei für den Käufer inkl. MwSt.
Flächen
- Wohnfläche
- 205,0 m²
- Grundstücksfläche
- 1.000,0 m²
- Anzahl Zimmer
- 8,0
- Anzahl Badezimmer
- 2,0
- Anzahl Stellplätze
- 2,0
- Anzahl Balkone
- 1,0
- Anzahl der Logia
- 1,0
- Fläche Balkon / Terrasse
- 30,0
Zustand
- Baujahr
- 1970
- Zustand
- Gepflegt
- Letzte Modernisierung
- 2000
- Frei ab
- nach Vereinbarung


















